Grupa Fibra Sp. z o.o.
44-310 Radlin
ul. Rymera 177
tel. 510 777 200
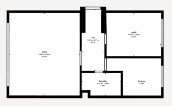
Na sprzedaż komfortowe, funkcjonalne mieszkanie o powierzchni 44 m², położone na 1. piętrze kameralnego, czteropiętrowego budynku w samym sercu miasta.
To idealna propozycja dla osób szukających wygodnego miejsca do życia lub pewnej inwestycji pod wynajem – lokalizacja i układ gwarantują stałe zainteresowanie najemców.
Rozkład zapewnia komfort codziennego życia oraz szerokie możliwości aranżacyjne.
Mieszkanie jest do odświeżenia – co daje nowemu właścicielowi pełną swobodę w stworzeniu wnętrza dopasowanego do własnego stylu, bez ponoszenia wysokich kosztów generalnego remontu.
Istnieje możliwość pozostawienia umeblowania.
Nieruchomość znajduje się w ścisłym centrum – wszystko, czego potrzebujesz, masz na wyciągnięcie ręki:
To adres, który zawsze będzie atrakcyjny – zarówno do życia, jak i pod wynajem.
Dlaczego warto?
✔ świetna lokalizacja – centrum miasta
✔ funkcjonalny układ pomieszczeń
✔ balkon + piwnica
✔ 1 piętro – najbardziej poszukiwane
✔ idealne pod inwestycję
Skontaktuj się i umów na prezentację – to mieszkanie ma duży potencjał i szybko znajdzie nowego właściciela!




Uwaga: mogą wystąpić dodatkowe opłaty za założenie księgi wieczystej oraz ustanowienie hipoteki.